ARCHITECTURE
INTERIOR DESIGN
FURNITURE DESIGN
Gabriel-Cosmin Cismaru
Architect & Interior designer
ARCHITECTURE
INTERIOR DESIGN
FURNITURE DESIGN

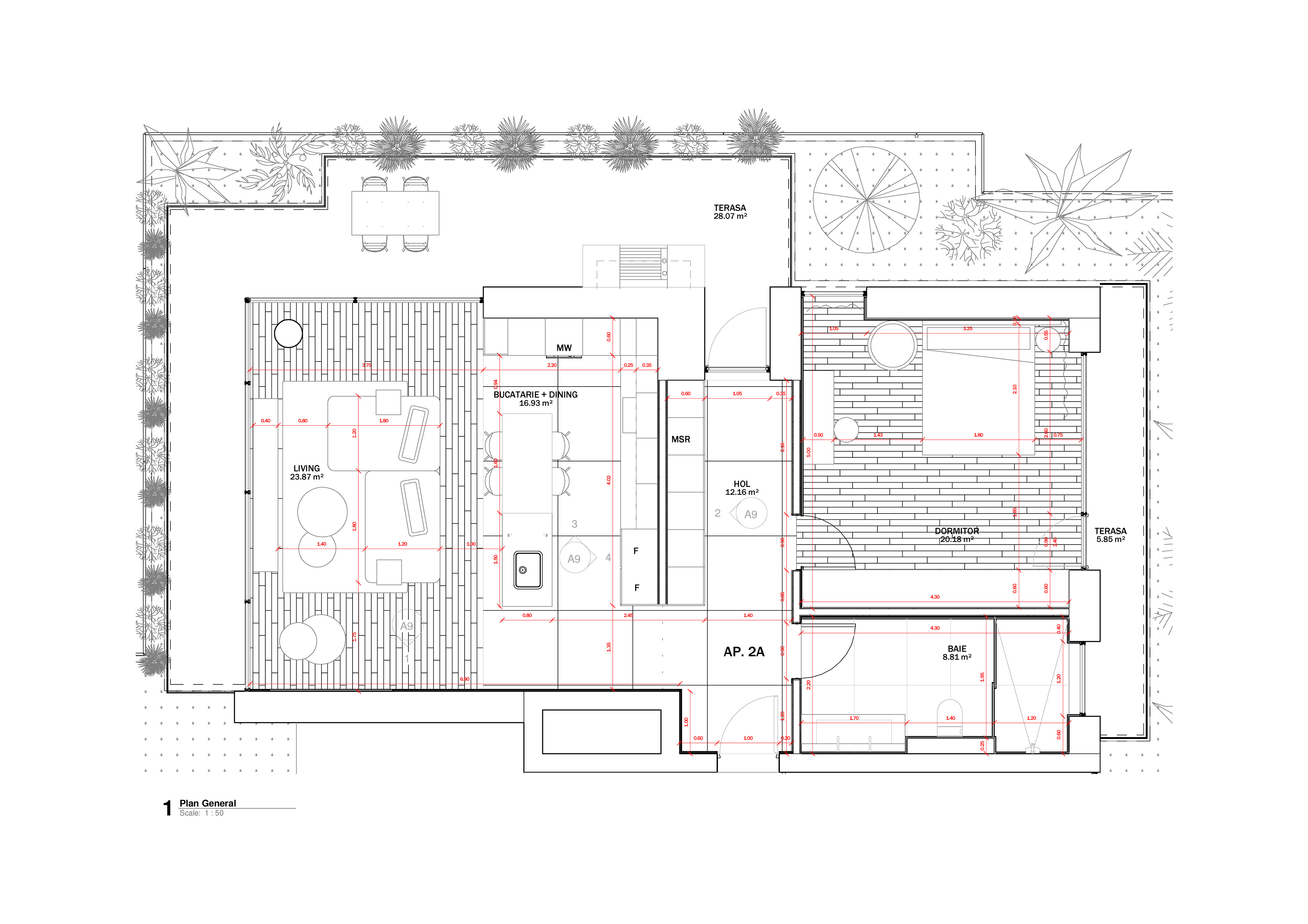
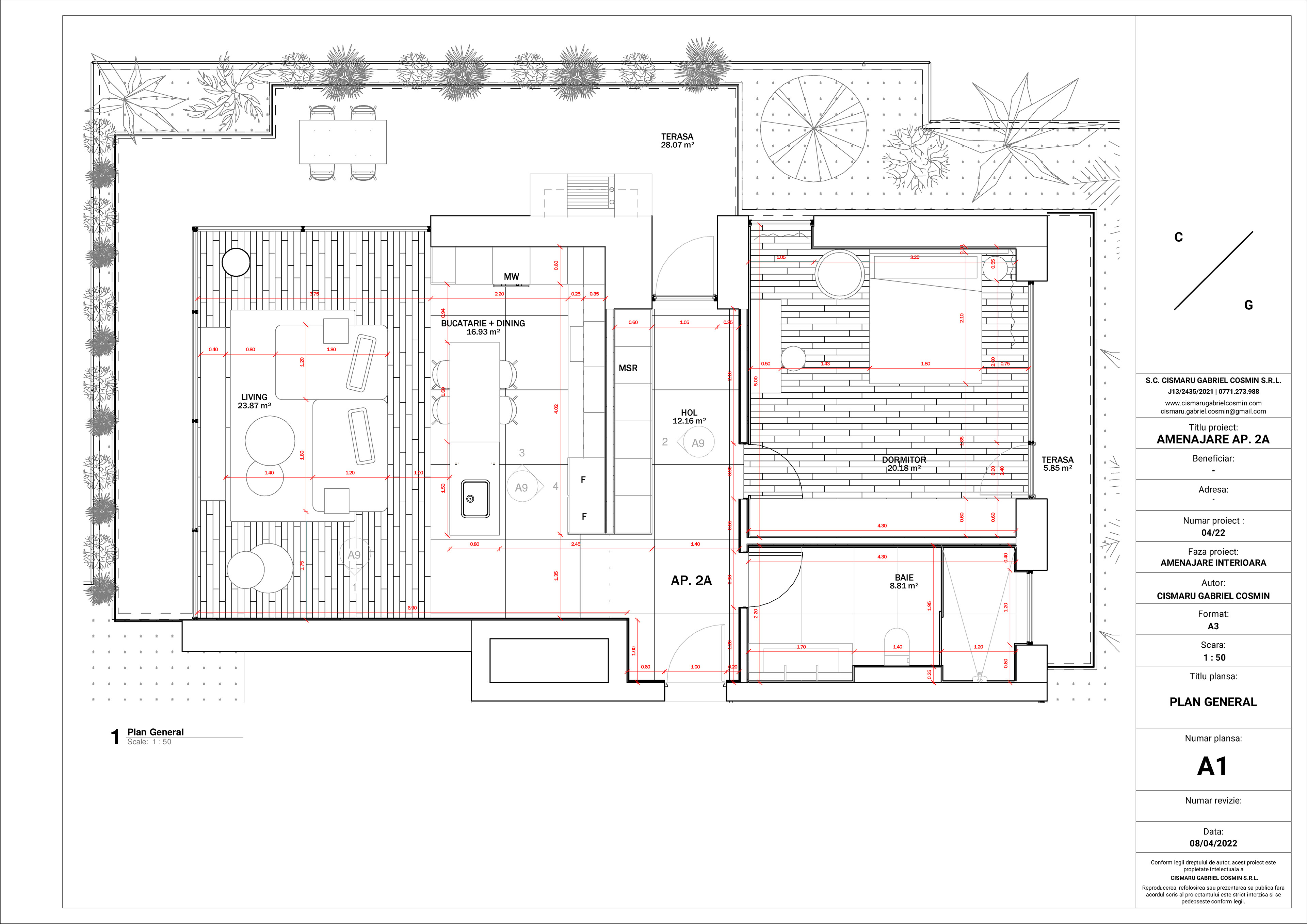
NS - Ap 2A

↑Back to Top